Главная

Проект Вайдхаус

Также Вы можете просмотреть все проекты в нашем каталоге.

ISTKULT предлагает обширную коллекцию типовых проектов домов из газобетона, адаптированных под российские климатические условия и строительные нормативы. Каталог компании включает более 60 авторских разработок архитекторов - от компактных одноэтажных коттеджей до просторных трехэтажных особняков с мансардами.

Вайдхаус
Вайдхаус
Вайдхаус
Вайдхаус
Вайдхаус
Проект
Вайдхаус
Тип строения
Дом
Общая площадь
138 м²
Площадь застройки
155 м²
Этажность
1
Получить проект
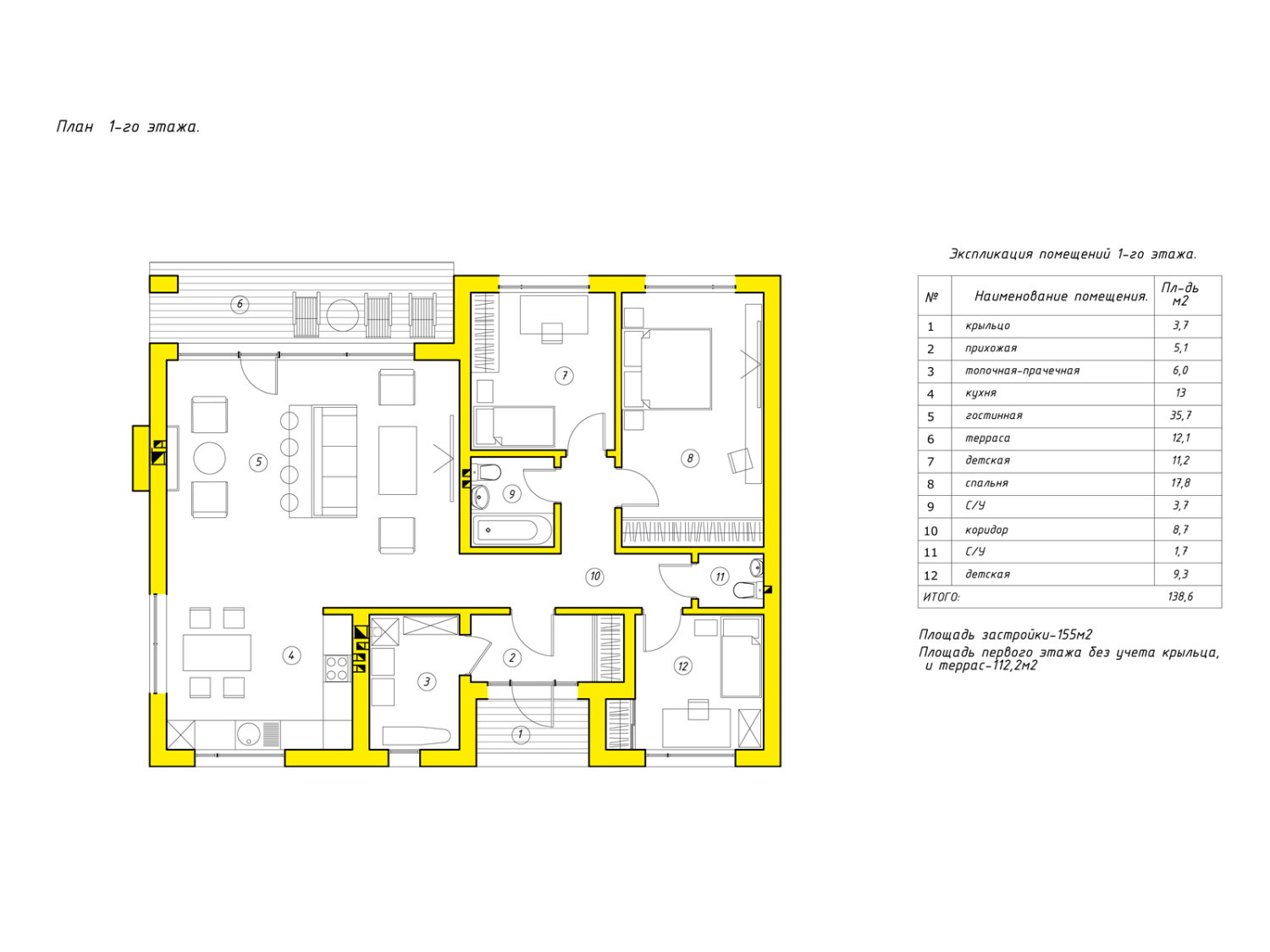
План проекта
Информация о проекте
Общая площадь 138 м2, жилая площадь 112 м2.
Вайдхаус одноэтажный дом с тремя спальнями, террасой и скатной кровлей — это идеальное решение для тех, кто хочет жить в комфорте и уюте. Общая площадь дома составляет 138 м2, что достаточно для небольшой семьи из трех-четырех человек. Кухня и гостиная объединены в одно пространство, что создает уютную атмосферу для общения и приготовления еды. В гостиной есть камин, который может использоваться для обогрева помещения и создания уютной атмосферы.
Терраса на заднем дворе дома — это отличное место для отдыха на свежем воздухе, проведения пикников и барбекю. Дом оборудован котельной-прачечной и кладовой для хранения вещей и удобства проживания. В доме предусмотрено несколько сан.узлов

Тип фундамента
Монолитная железобетонная плита
Материал кровли
Гибкая черепица
Наличие цокольного этажа
Нет
Тип крыши
Скатная
Тип перекрытия
Деревянные лаги
Наличие гаража
Нет
Стоимость коробки дома (с работой)
6 900 000 Оценка от: 01.05.2025
Стоимость проекта «под ключ»
12 420 000 Оценка от: 01.05.2025