Проект Райнсхоф

Также Вы можете просмотреть все проекты в нашем каталоге.

ISTKULT предлагает обширную коллекцию типовых проектов домов из газобетона, адаптированных под российские климатические условия и строительные нормативы. Каталог компании включает более 60 авторских разработок архитекторов - от компактных одноэтажных коттеджей до просторных трехэтажных особняков с мансардами.

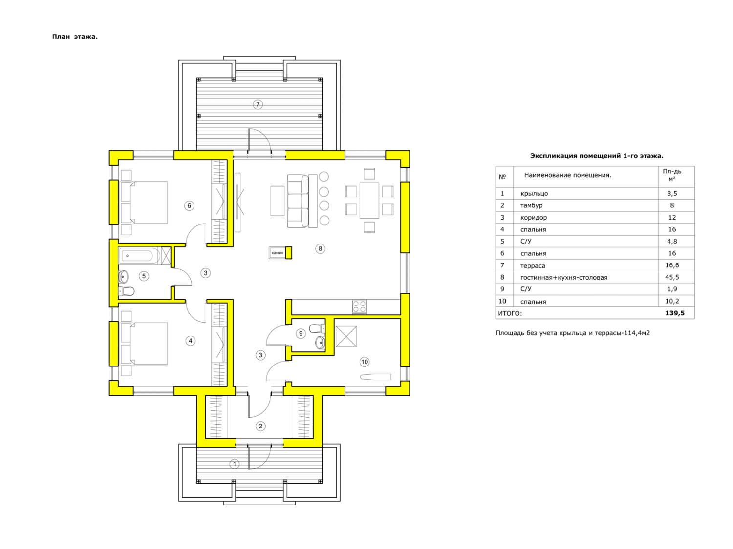
Общая площадь 139 м2, жилая площадь 114 м2.
Одноэтажный дом Райнсхоф площадью 114 квадратных метров - идеальный выбор для тех, кто ценит комфорт, уют и свободу пространства. Этот дом станет прекрасным местом для постоянного проживания или отдыха за городом.
Дом выполнен с использованием качественных и экологичных материалов. Фасад здания выполнен из натурального камня ,дерева,и штукатурки  что придает дому эстетичный и стильный вид. Большие окна обеспечивают максимальное количество естественного света и открывают живописный вид на окружающий ландшафт.
Планировка дома включает в себя:
Просторную гостиную, совмещенную с кухней. Это пространство предоставляет возможность собираться всей семьей или с друзьями, наслаждаясь общением и готовя любимые блюда.
Крытая терраса с зоной отдыха и барбекю, где можно наслаждаться теплыми летними вечерами и принимать гостей.
Подсобные помещения, такие как прачечная, котельная и кладовая, обеспечивают комфортное проживание и позволяют хранить все необходимые вещи.
Райнсхоф
Рабочая документация
В наличии
Тип строения
Дом
Тип фундамента
Мелкозаглубленная лента
Тип крыши
Скатная
Материал кровли
Гибкая черепица
Тип перекрытия
Деревянные лаги
Наличие цокольного этажа
Нет
Получить консультацию
Задать вопрос автору
Стоимость коробки дома
7 645 000 руб.
Стоимость проекта «под ключ», руб.
12 510 000
Дата оценки
01.05.2025
0


Разнообразие архитектурных решений

Готовые проекты домов из газобетона охватывают различные стилистические направления. Скандинавская эстетика отражена в проектах «Осло», «Райнсберг», немецкие традиции - в «Мюнхене», «Штутгарте». Модульные решения представлены коттеджами «ФлэтХаус» и «Модульхаус», позволяющими адаптировать планировку под индивидуальные потребности заказчика.

Площадь домов варьируется от 40 до 400 квадратных метров. Проекты коттеджей из газобетона включают варианты с гаражами, зимними садами, террасами. Отдельную категорию составляют специализированные постройки - сауны, детские площадки, воркбоксы для удаленной работы.

Технические характеристики материала

Газобетонные блоки плотностью D400-D700 обеспечивают оптимальное сочетание теплоизоляционных свойств и конструкционной прочности. Материал в три раза теплее кирпича, что исключает необходимость дополнительного утепления при толщине стены 375-400 мм.

Геометрическая точность блоков позволяет выполнять кладку на тонкошовный клей толщиной 1-3 мм. Это сокращает теплопотери через мостики холода, характерные для традиционной цементно-песчаной кладки.

Строительные преимущества

Готовый проект из газобетона реализуется значительно быстрее кирпичного аналога. Крупный формат блоков ускоряет возведение стен до 40%. Материал легко обрабатывается ручными инструментами - пилится ножовкой, штрабится для прокладки коммуникаций.

Проекты домов из газобетона от ISTKULT разработаны с учетом несущей способности материала. Газобетон класса В2,5-В3,5 выдерживает нагрузки многоэтажного строительства при правильном конструктивном решении.

Компания обеспечивает комплексное сопровождение строительства - от технических консультаций до поставки всех необходимых материалов. Каждый типовой проект газобетон включает детальную проектную документацию, спецификацию материалов, технологические карты монтажа.