Проект Мюнхен

Также Вы можете просмотреть все проекты в нашем каталоге.

ISTKULT предлагает обширную коллекцию типовых проектов домов из газобетона, адаптированных под российские климатические условия и строительные нормативы. Каталог компании включает более 60 авторских разработок архитекторов - от компактных одноэтажных коттеджей до просторных трехэтажных особняков с мансардами.

Мюнхен
Мюнхен
Мюнхен
Мюнхен
Мюнхен
Проект
Мюнхен
Тип строения
Дом
Общая площадь
150 м²
Площадь застройки
173 м²
Этажность
2
Получить проект
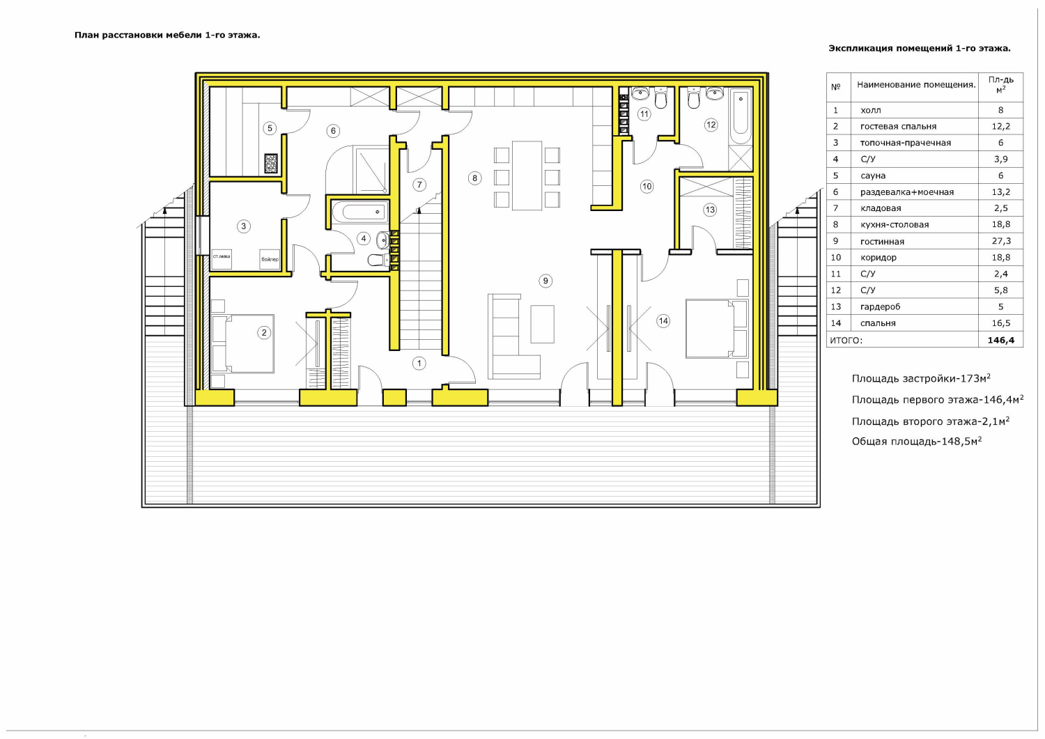
План проекта
Информация о проекте
Общая площадь 150 м2, жилая площадь 148.7 м2.
Дом для людей с современным взглядом на жизнь. Основная идея проекта — гармоничное встраивание коттеджа в сложную ландшафтную среду. Проект рассчитан на участки с сильным уклоном. С верхней точки участка дом будет практически незаметен, поскольку его крыша устроена как продолжение газона. К тому же на ней оставлено место для последовательной парковки двух машин.
Тип фундамента
Монолитная железобетонная плита
Наличие цокольного этажа
Нет
Автор проекта
Рытиков А.С
Тип крыши
Плоская эксплуатируемая
Тип перекрытия
Монолитный железобетон
Наличие гаража
Нет
Стоимость коробки дома (с работой)
8 750 000 Оценка от: 01.05.2025
Стоимость проекта «под ключ»
14 250 000 Оценка от: 01.05.2025