Главная

Проект Дортмунд

Также Вы можете просмотреть все проекты в нашем каталоге.

ISTKULT предлагает обширную коллекцию типовых проектов домов из газобетона, адаптированных под российские климатические условия и строительные нормативы. Каталог компании включает более 60 авторских разработок архитекторов - от компактных одноэтажных коттеджей до просторных трехэтажных особняков с мансардами.

Дортмунд
Дортмунд
Дортмунд
Дортмунд
Дортмунд
Проект
Дортмунд
Тип строения
Дом
Общая площадь
135 м²
Площадь застройки
162 м²
Этажность
1
Получить проект
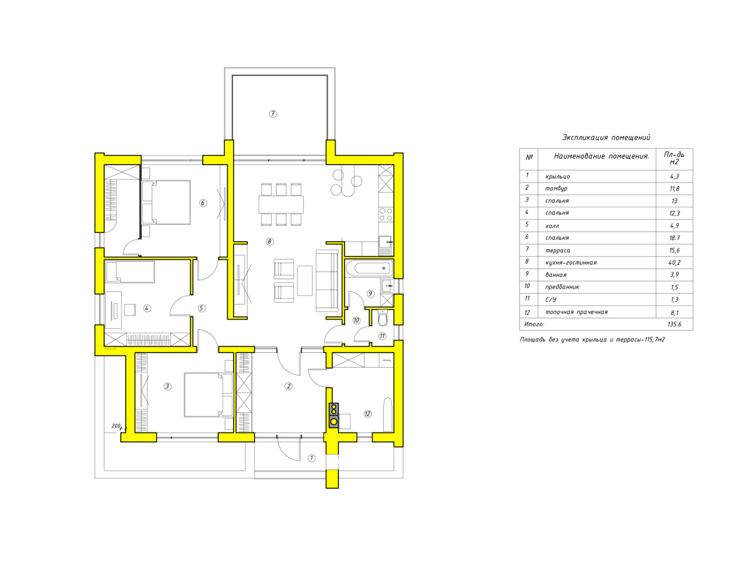
План проекта
Информация о проекте
Общая площадь 135 м2, жилая площадь 115 м2.
Данный проект предполагает строительство капитального индивидуального жилого дома рассчитанного для круглогодичного проживания семьи из 4-5 человек.
Основным конструкционно-изоляционным материалом является стеновой материал — газобетон автоклавного твердения марки IstKult. Высокие тепло- и звукоизоляция, хорошая прочность и превосходная огнестойкость материала являются отличительными особенностями газобетона .
В доме три спальни, совмещенная большая кухня гостиная с выходом на террасу и большим панорамным остеклением с видом на ландшафт внутреннего двора.

Тип фундамента
Мелкозаглубленная лента
Материал кровли
Пирог плоской кровли
Наличие цокольного этажа
Нет
Тип крыши
Плоская неэксплуатируемая
Тип перекрытия
Монолитный железобетон
Наличие гаража
Нет
Стоимость коробки дома (с работой)
6 325 000 Оценка от: 01.05.2025
Стоимость проекта «под ключ»
10 925 000 Оценка от: 01.05.2025