Главная

Гостевой дом

Также Вы можете просмотреть все проекты в нашем каталоге.

ISTKULT предлагает обширную коллекцию типовых проектов домов из газобетона, адаптированных под российские климатические условия и строительные нормативы. Каталог компании включает более 60 авторских разработок архитекторов - от компактных одноэтажных коттеджей до просторных трехэтажных особняков с мансардами.

Гостевой дом
Гостевой дом
Гостевой дом
Гостевой дом
Гостевой дом
Проект
Гостевой дом
Тип строения
Дом
Общая площадь
75,5 м²
Площадь застройки
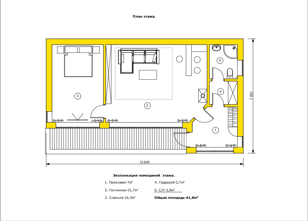
61,8 м²
Этажность
1
Получить проект
План проекта
Информация о проекте
Часто бывает так что у семьи нет сразу средств на строительство дома своей мечты особенно это актуально для молодых пар, но при этом готовы его строить постепенно, возникает вопрос где проживать на время строительства. Данный проект как раз предназначен для такого подхода при планировании строительства, в проекте есть все необходимое для полноценного проживания одной семьи, по центру большая кухня гостиная с панорамным остеклением, так же есть печь-камин которой можно как обогреть помещение так и посидеть зимним вечером у огня. Предполагается что по завершению строительства основного дома этот останется как гостевой дом или жилье для стареющих родителей.
Тип фундамента
Монолитная железобетонная плита
Материал кровли
Пирог плоской кровли
Наличие цокольного этажа
Нет
Тип крыши
Скатная
Тип перекрытия
Деревянные лаги
Наличие гаража
Нет
Стоимость коробки дома (с работой)
4200000
Стоимость проекта «под ключ»
7500000