Главная

Проект Бунгало

Также Вы можете просмотреть все проекты в нашем каталоге.

ISTKULT предлагает обширную коллекцию типовых проектов домов из газобетона, адаптированных под российские климатические условия и строительные нормативы. Каталог компании включает более 60 авторских разработок архитекторов - от компактных одноэтажных коттеджей до просторных трехэтажных особняков с мансардами.

Бунгало
Бунгало
Бунгало
Бунгало
Бунгало
Проект
Бунгало
Тип строения
Дом
Общая площадь
37 м²
Площадь застройки
40 м²
Этажность
1
Получить проект
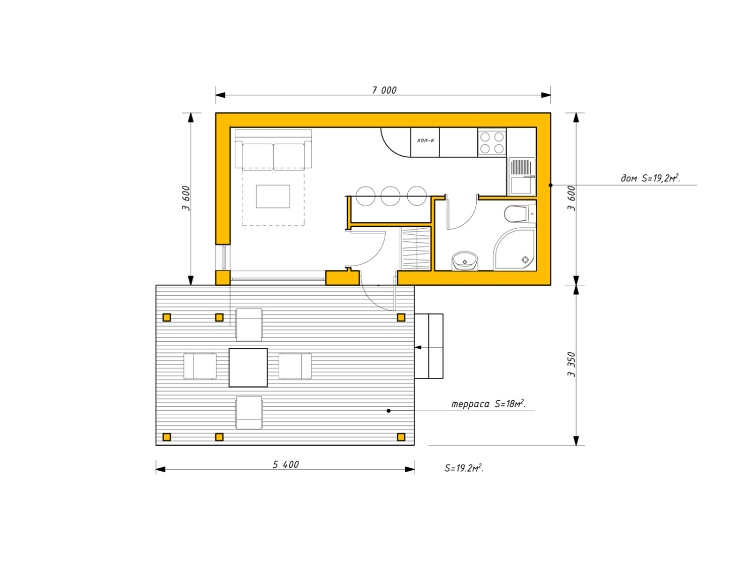
План проекта
Информация о проекте
Общая площадь 37 м2, жилая площадь 19 м2.
Гостевой домик с модным минималистичным дизайном. Проект оптимален для коммерческой застройки типовых строений на базах отдыха или в эко-поселениях. Ведь применяемые материалы и конструктивные решения позволяют возводить дом быстро (менее, чем за месяц) и с небольшой сметой.
Тип фундамента
Свайно-ростверковый
Материал кровли
Гибкая черепица
Наличие цокольного этажа
Нет
Тип крыши
Скатная
Тип перекрытия
Деревянные лаги
Наличие гаража
Нет
Стоимость коробки дома (с работой)
2 200 000 Оценка от: 01.05.2025
Стоимость проекта «под ключ»
3 500 000 Оценка от: 01.05.2025