Проект Бонн

Также Вы можете просмотреть все проекты в нашем каталоге.

ISTKULT предлагает обширную коллекцию типовых проектов домов из газобетона, адаптированных под российские климатические условия и строительные нормативы. Каталог компании включает более 60 авторских разработок архитекторов - от компактных одноэтажных коттеджей до просторных трехэтажных особняков с мансардами.

Бонн
Бонн
Бонн
Бонн
Бонн
Проект
Бонн
Тип строения
Дом
Общая площадь
55 м²
Площадь застройки
81 м²
Этажность
1
Получить проект
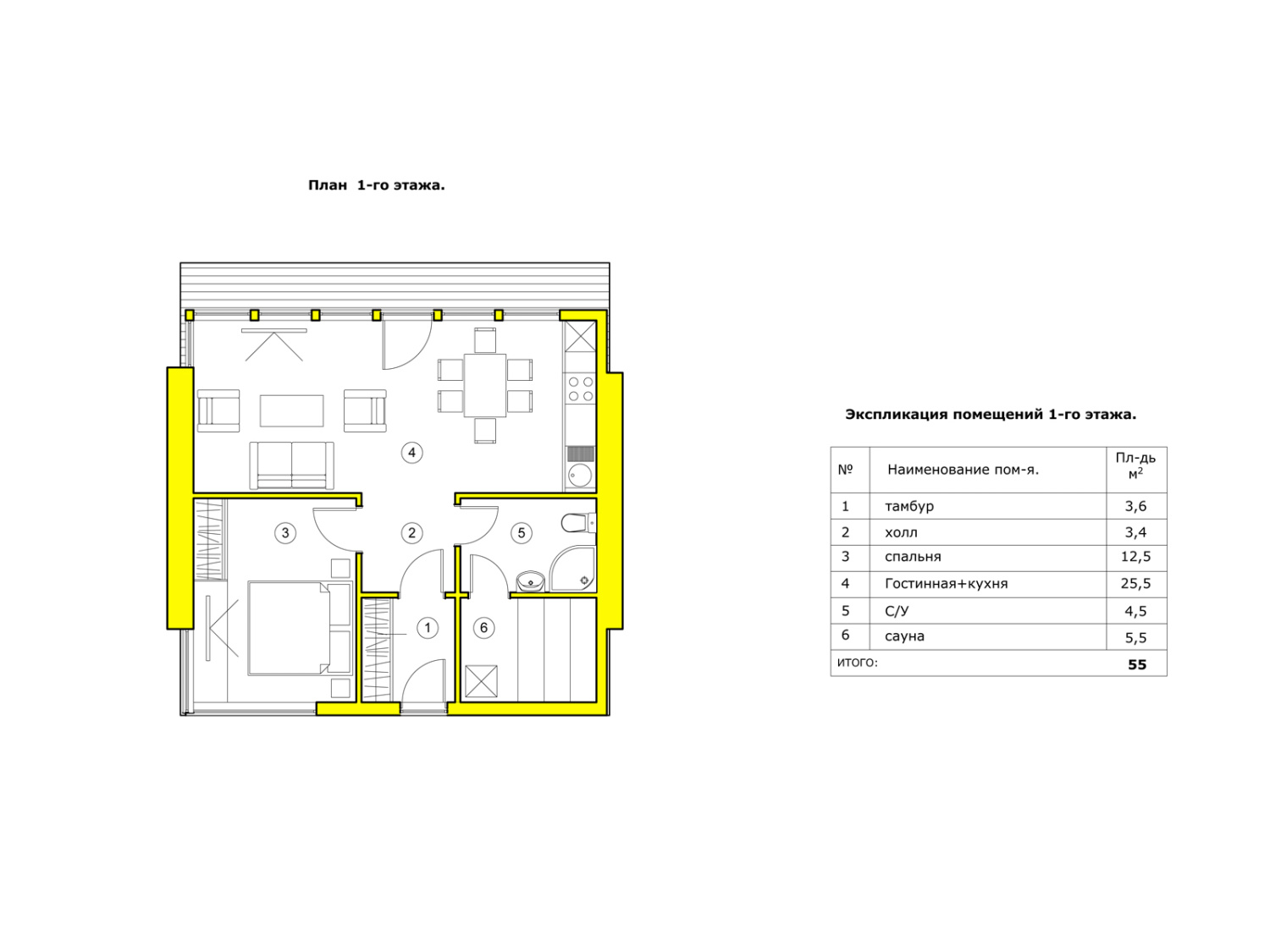
План проекта
Информация о проекте
Общая площадь 55 м2, жилая площадь 55 м2.
Тренд последних лет — максимально компактные стильные дома, в которых есть всё необходимое для комфортного круглогодичного или сезонного проживания семейной пары. Небольшая жилая площадь компенсируется отменной планировкой, а также невысокой стоимостью и простотой монтажа этого дома. Внутри него не будет тесно, наоборот, большая гостиная (25,5 м2) имеет панорамное остекление на весь фасад.
Тип фундамента
Мелкозаглубленная лента
Материал кровли
Пирог плоской кровли
Наличие цокольного этажа
Нет
Тип крыши
Плоская неэксплуатируемая
Тип перекрытия
Монолитный железобетон
Наличие гаража
Нет
Стоимость коробки дома (с работой)
3 025 000 Оценка от: 01.05.2025
Стоимость проекта «под ключ»
5 225 000 Оценка от: 01.05.2025