Проект Барнхаус (2 этажа)

Также Вы можете просмотреть все проекты в нашем каталоге.

ISTKULT предлагает обширную коллекцию типовых проектов домов из газобетона, адаптированных под российские климатические условия и строительные нормативы. Каталог компании включает более 60 авторских разработок архитекторов - от компактных одноэтажных коттеджей до просторных трехэтажных особняков с мансардами.

Барнхаус (2 этажа)
Барнхаус (2 этажа)
Барнхаус (2 этажа)
Барнхаус (2 этажа)
Барнхаус (2 этажа)
Проект
Барнхаус (2 этажа)
Тип строения
Дом
Общая площадь
135 м²
Площадь застройки
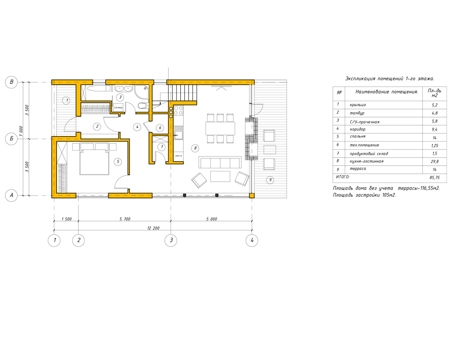
105 м²
Этажность
2
Получить проект
План проекта
Информация о проекте
Общая площадь 135.75 м2, жилая площадь 116.55 м2.
Компактный и уютный дом в котором присутствуют сочетание привычных традиционных форм и современного дома. Основная доминанта композиции — просторная, хорошо освещённая гостиная за счёт устроенного второго света. Большое витражное остекление создает единство внутреннего пространства и окружающего ландшафта.

Тип фундамента
Монолитная железобетонная плита
Материал кровли
Фальц / кликфальц
Наличие цокольного этажа
Нет
Тип крыши
Скатная
Тип перекрытия
Сборно-монолитное перекрытие
Наличие гаража
Нет
Стоимость коробки дома (с работой)
7 425 000 Оценка от: 01.05.2025
Стоимость проекта «под ключ»
12 825 000 Оценка от: 01.05.2025